Beoordeeld met een 9,6 op
Neem contact met ons op! 0181 - 32 37 93
v Leijdenstraat 10
v Leijdenstraat 10
v Leijdenstraat 10
v Leijdenstraat 10
v Leijdenstraat 10
v Leijdenstraat 10
v Leijdenstraat 10
v Leijdenstraat 10
v Leijdenstraat 10
v Leijdenstraat 10
v Leijdenstraat 10
v Leijdenstraat 10
v Leijdenstraat 10
v Leijdenstraat 10
v Leijdenstraat 10
v Leijdenstraat 10
v Leijdenstraat 10
v Leijdenstraat 10
v Leijdenstraat 10
v Leijdenstraat 10
v Leijdenstraat 10
v Leijdenstraat 10
v Leijdenstraat 10
v Leijdenstraat 10
v Leijdenstraat 10
v Leijdenstraat 10
v Leijdenstraat 10
v Leijdenstraat 10
v Leijdenstraat 10
v Leijdenstraat 10
v Leijdenstraat 10
v Leijdenstraat 10
v Leijdenstraat 10
v Leijdenstraat 10
v Leijdenstraat 10

v Leijdenstraat 10

ROCKANJE

€ 259.500,- k.k.

Interesse?

Neem contact met ons op!

Neem contact met ons op

Omschrijving

Ben jij op zoek naar een woning op een gewilde en centrale locatie, die je helemaal naar eigen smaak kunt verbouwen?
Deze woning met een lichte woonkamer, ruime woonkeuken, drie slaapkamers en de mogelijkheid voor een moderne badkamer biedt de basis om hier jouw droomwoning van te maken. Verder beschikt de woning over een diepe achtertuin met een vrijstaande berging.
De woning ligt in een rustige, kindvriendelijke wijk op loopafstand van het dorpscentrum met diverse winkels, een bakker en een supermarkt. En wil je even uitwaaien? De duinen en het strand van Rockanje zijn vlakbij, ideaal voor een heerlijke wandeling of zomerse dag aan zee.
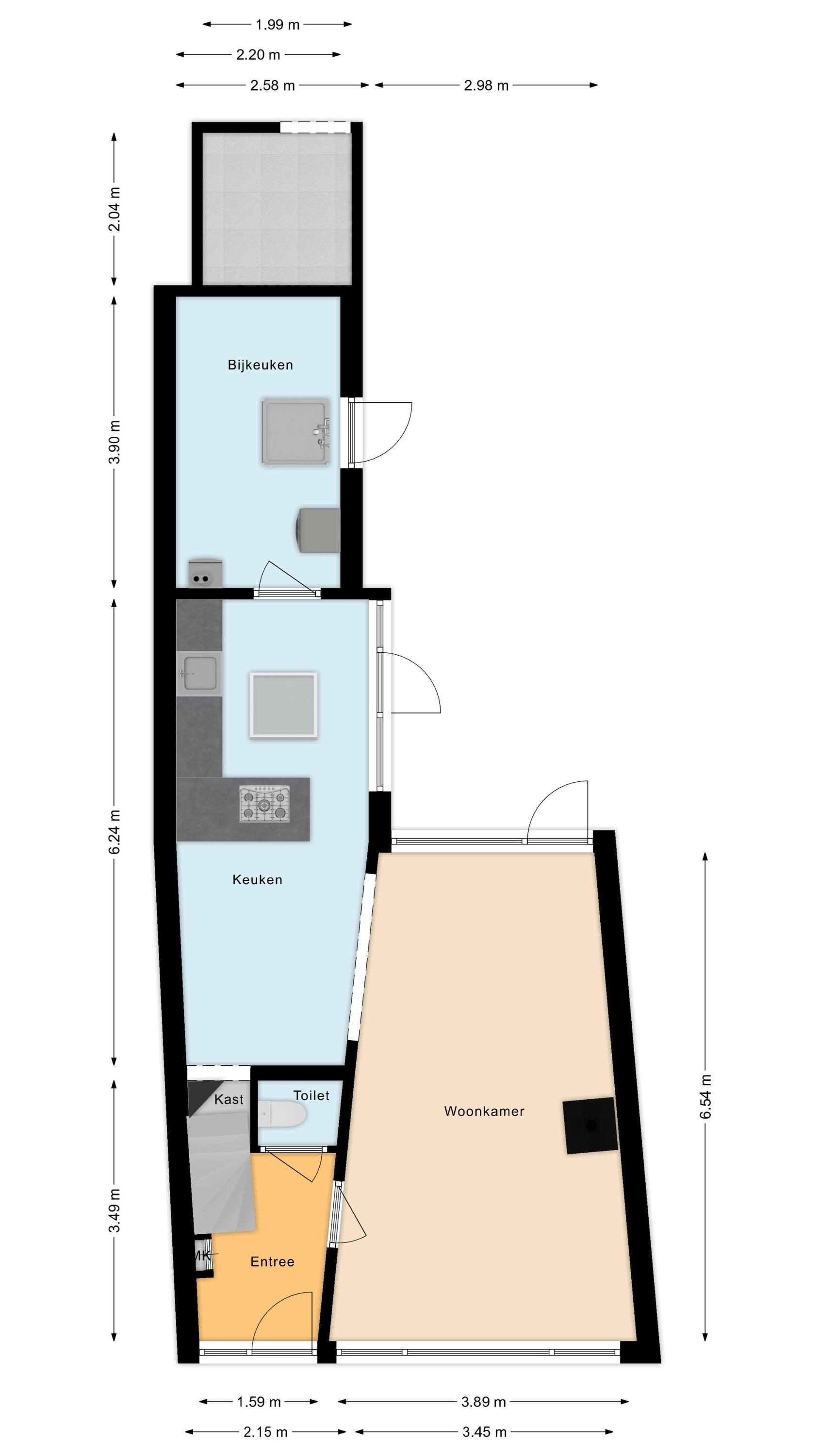
Indeling

Begane grond:
Hal/entree met de meterkast, trapopgang en toiletruimte. De doorzonwoonkamer heeft grote raampartijen aan zowel de voor- als achterzijde, waardoor de ruimte prettig licht is. De keuken, gesitueerd aan de achterzijde, heeft een deur naar de achtertuin en toegang tot de kelder/trapkast.
De moderne keuken, geplaatst in 2016, is ingericht van een 5-pitsgaskookplaat, afzuigkap en een losse koel-/vriescombinatie. De keuken is grotendeels klaar, maar enkele aansluitingen en afwerkingen dienen nog afgemaakt te worden – het meeste werk is al gedaan!
Vanuit de keuken is er ook toegang tot de bijkeuken met de opstelplaats van de cv-combiketel, de witgoedaansluitingen en hier is een (tijdelijke) douche geplaatst, zodat u tijdens de verbouwing niet zonder zit.

1e verdieping:
De overloop biedt toegang tot drie slaapkamers, de badkamer en er is een vaste kast. Alle slaapkamers hebben een laminaatvloer. De badkamer, gelegen aan de voorzijde van de woning, is al verwijderd, tijd om jouw ideale badkamer samen te stellen en aan de slag te gaan!

De achtertuin is ontzettend diep en heeft grotendeels bestrating. Er staat een houtopslag, een vrijstaande houten berging en de tuin is achterom bereikbaar.

Ga jij deze woning helemaal naar eigen hand te zetten? Dan heb je de ideale gezinswoning!

Afmetingen:
- Woonkamer : 6.54 x 3.89
- Keuken : 6.24 x 2.15 / 2.58
- Bijkeuken : 3.90 x 2.20
- Slaapkamer 1 : 3.89 x 3.63 / 2.90
- Slaapkamer 2 : 2.58 x 4.02 / 3.63
- Slaapkamer 3 : 3.01 x 2.65 / 2.18
- Badkamer : 1.27 x 1.81
- Berging : 3.80 x 2.80

Bijzonderheden:
- Kozijnen voorzijde vervangen in 2014 met HR++ beglazing.
- Keuken geplaatst in 2016.
- Het dak is vervangen in 2018.
- Deels dubbele beglazing, deels enkel glas.
- Cv-combiketel Nefit 2011.
- Energielabel D.
- Begane grondvloer deels hout en deels beton.
- Houten verdiepingsvloer.
- Er is achterstallig onderhoud aan de woning, en er is geen badkamer aanwezig.
- In de koopovereenkomst wordt de ouderdomsclausule opgenomen.
- In de koopovereenkomst wordt de niet-zelfbewoningsclausule opgenomen.

Aanvaarding: in overleg, kan snel.

Deze informatie is door ons met de nodige zorgvuldigheid samengesteld en mag worden beschouwd als een uitnodiging tot het doen van een bod of om in onderhandeling te treden. Onzerzijds wordt echter geen enkele aansprakelijkheid aanvaard voor enige onvolledigheid, onjuistheid of anderszins, dan wel de gevolgen daarvan. Alle opgegeven maten en oppervlakten zijn indicatief.

De Meetinstructie is gebaseerd op de NEN2580 en is bedoeld om een meer eenduidige manier van meten toe te passen voor het geven van een indicatie van de gebruiksoppervlakte. De Meetinstructie sluit verschillen in meetuitkomsten niet volledig uit, door bijvoorbeeld interpretatieverschillen, afrondingen of beperkingen bij het uitvoeren van de meting. Er is van de woning een meetrapport aanwezig.

Interesse in deze woning? Schakel direct uw eigen NVM-aankoopmakelaar in. Uw NVM-aankoopmakelaar komt op voor uw belang en bespaart u tijd, geld en zorgen. Adressen van collega NVM-aankoopmakelaars vindt u op nvmzhz.nl en op funda.nl
Lees meer

Kenmerken

Overdracht

Vraagprijs
€ 259.500,- k.k.
Status
verkocht onder voorbehoud
Aanvaarding
in overleg

Bouw

Soort woning
woonhuis
Soort woonhuis
eengezinswoning
Type woonhuis
tussenwoning
Aantal woonlagen
2
Bouwvorm
bestaande bouw
Bouwjaar
1962
Huidige bestemming
woonruimte
Onderhoud binnen
redelijk
Onderhoud buiten
redelijk
Voorzieningen
tv kabel
Isolatie
gedeeltelijk dubbel glas

Energie

Energielabel
D
Verwarming
cv ketel, houtkachel
Warm water
cv ketel
C.V.-ketel
gas gestookte combi-ketel uit 2011 van Nefit, eigendom

Oppervlakten en inhoud

Woonoppervlakte
93 m²
Perceeloppervlakte
170 m²
Inhoud
317 m³
Bergruimte oppervlakte
11 m²
Buitenruimte oppervlakte
4 m²

Indeling

Aantal kamers
4
Aantal slaapkamers
3

Buitenruimte

Ligging
aan rustige weg, in woonwijk
Tuin
achtertuin met een oppervlakte van 114 m² en is gelegen op het oosten

Garage / Schuur / Berging

Garage
geen garage
Parkeergelegenheid
openbaar parkeren
Schuur/berging
vrijstaand hout

Plattegronden

Locatie

Meer informatie?